4 bed detached house for rent in Chudleigh, Devon, TQ13 Let Agreed

£ 1,300/1 Month Rental
Lawn Drive, Chudleigh, Chudleigh, Devon, TQ13 0LS, England
  (0/5) / 154
  • IMG_3376
  • IMG_3384
  • IMG_3342
  • IMG_3346
  • IMG_3294
  • IMG_3295
  • IMG_3299
  • IMG_3303
  • IMG_3308
  • IMG_3281
  • IMG_3276
  • IMG_3313
  • IMG_3321
  • IMG_3322
  • IMG_3330
  • IMG_3335
  • IMG_3339
  • IMG_3361
  • IMG_3367
  • IMG_3371
  • 3
  • 4
  • 3 Lawn Drive, Chudle
2 Receptions
4 Beds
2 Baths
£ 1,300/1 Month Rental
Woods Homes Lettings – Teignbridge

Woods Homes Lettings – Teignbridge

Phone


View ratings and reviews for this agent:
No entries were found

Monthly Budget Calculator

Can you afford this property?

Description

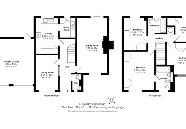
A modern four bedroom detached house with two receptions rooms and a double garage, situated in the popular town of Chudleigh. Available now.

This well presented modern four bedroom detached house is located in the popular town of Chudleigh, close to commutable links and local amenities. The front of the property boasts a double garage, ample driveway parking and small garden leading to an open porch. The ground floor consists of a large double aspect lounge, flooded with natural light, new carpet due to be laid, also featuring patio doors which lead out to the enclosed rear garden with patio, lawned area and a variety of shrubs and bushes, there is a separate dining room and a convenient cloakroom . The fitted kitchen offers ample storage and workspace, an integrated double oven and gas hob with a utility room conveniently located adjacent to it, with space and plumbing for a washing machine and door to the rear garden. Upstairs, there are four generously sized double bedrooms, the master bedroom boasts a large en-suite bathroom with a bath and a bidet, there is an additional family bathroom with a bath and shower over. The property enjoys scenic views over the Devon countryside and fields. EPC rating C. Council Tax Band F. Deposit required £1,500. Available now.

Rooms

Reception rooms
2
Bed
4
Bathrooms
2

DETAILS

UPRN :  100040325565
Tenure type :  Freehold
Furnished :  Unfurnished
FEATURES:
  • Modern detached house
  • Popular town location of Chudleigh
  • Four double bedrooms
  • Master bedroom with en-suite
  • Double aspect lounge
  • Separate dining room
  • Fitted kitchen
  • Utility room
  • Double garage with driveway
  • Scenic views

Important Information

Important Information

 Related properties

Nearby properties
2 bed terraced for sale in Chudleigh, Devon, TQ13
Buy £ 257,950/
Lawn Drive, Chudleigh, Devon, TQ13 0LS, England
2 bed terraced for rent in Chudleigh, Devon, TQ13
Rent £ 925/1 Month Rental
Lawn Drive, Chudleigh, Devon, TQ13 0LS, England
3 bed detached house for sale in Chudleigh, Devon, TQ13
Buy £ 320,000/
Lawn Drive, Chudleigh, Chudleigh, Devon, TQ13 0LS, England

ADD COMMENT OR ASK A QUESTION

Your rating:

Submit