2 bed terraced for sale in Chudleigh, Devon, TQ13 Available

£ 257,950/
Lawn Drive, Chudleigh, Devon, TQ13 0LS, England
  (0/5) / 167
  • IMG_1087-2.JPG
  • IMG_0990
  • IMG_1027
  • IMG_1032
  • IMG_1060
  • IMG_1067
  • IMG_1041.JPG
  • IMG_1014
  • IMG_1035
  • IMG_0997
  • IMG_1064
  • 31 Lawn Drive, Chudl
1 Receptions
2 Beds
1 Baths
£ 257,950/
Woods Homes Sales (Teignbridge)

Woods Homes Sales (Teignbridge)

Phone


View ratings and reviews for this agent:
No entries were found

Monthly Budget Calculator

Can you afford this property?

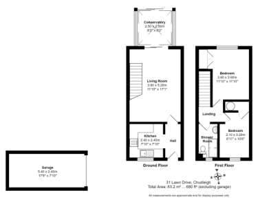
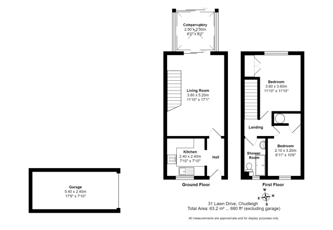
Description

A very well-presented two bedroom terrace house, located in a quite cul-de-sac location in Chudleigh with modern fitted kitchen, conservatory leading to secure private garden, garage and parking.

Situated in the charming town of Chudleigh, this beautifully presented two-bedroom terraced house offers a perfect blend of comfort and style. Upon entering the property, you will immediately notice the modern fitted kitchen, which boasts sleek countertops and ample storage space.

The spacious lounge/dining room leads through to the conservatory which is flooded with natural light and offers direct access to the private rear garden, creating a seamless flow between indoor and outdoor living spaces. Perfect for entertaining guests or simply enjoying a quiet evening at home.

The two bedrooms are generously sized and provide the perfect retreat after a long day. The modern fitted shower room offers a peaceful oasis for relaxation and rejuvenation with a double walk in shower cubicle, W.C, and wash hand basin.

This property also benefits from gas fired central heating and double glazing throughout, ensuring a warm and energy-efficient home all year round.

The garage provides plenty of space for storage, while the off-road parking to the front offers convenience and peace of mind.

The private secure rear garden is a hidden gem, providing a tranquil escape from the hustle and bustle of everyday life. Whether you are relaxing with a cup of tea or hosting a summer barbecue, this outdoor space is sure to be enjoyed by all.

Overall, this property offers the perfect balance of modern living and traditional charm. With its desirable location in a quiet cul-de-sac and a range of convenient features, this terraced house is sure to impress. Viewing is highly recommended to truly appreciate all that this property has to offer. Don't miss out on this fantastic opportunity to make this house your home.

Rooms

Reception rooms
1
Bed
2
Bathrooms
1

DETAILS

UPRN :  200003247639
FEATURES:
  • Very Well-Presented Two bedroom House
  • Modern Fitted Kitchen
  • Lounge/Dining Room
  • Conservatory with direct access to Rear Garden
  • Modern Fitted Contemporary Shower Room
  • Gas Fired Central Heating & Double Glazing
  • Large Garage with Off Road Parking to front
  • Private Secure Rear Garden

Important Information

Important Information

 Related properties

Nearby properties
2 bed terraced for rent in Chudleigh, Devon, TQ13
Rent £ 925/1 Month Rental
Lawn Drive, Chudleigh, Devon, TQ13 0LS, England
4 bed detached house for rent in Chudleigh, Devon, TQ13
Rent £ 1,300/1 Month Rental
Lawn Drive, Chudleigh, Chudleigh, Devon, TQ13 0LS, England
3 bed detached house for sale in Chudleigh, Devon, TQ13
Buy £ 320,000/
Lawn Drive, Chudleigh, Chudleigh, Devon, TQ13 0LS, England

ADD COMMENT OR ASK A QUESTION

Your rating:

Submit