3 bed semi-detached for sale in Paignton, Devon, TQ4 Available

£ 269,950/
Roselands Drive, Paignton, Devon, TQ4 7EH, England
  (0/5) / 134
  • IMG_2933
  • IMG_2943
  • IMG_2767
  • IMG_2787
  • IMG_2791
  • IMG_2770
  • IMG_2827
  • IMG_2816
  • IMG_2825
  • 1
  • 2
  • IMG_2818
  • IMG_2877
  • IMG_2908
  • IMG_2849
  • IMG_2935
  • IMG_2924
  • IMG_2937
  • IMG_2836
  • IMG_2887
  • IMG_2896
  • IMG_2917
  • IMG_2794
  • EPC
  • 79 Roselands Drive,
1 Receptions
3 Beds
2 Baths
£ 269,950/
Woods Homes Sales (Teignbridge)

Woods Homes Sales (Teignbridge)

Phone


View ratings and reviews for this agent:
No entries were found

Monthly Budget Calculator

Can you afford this property?

Description

A spacious three bedroom family home with large garden, garage and driveway parking, situated in this popular residential location, within easy reach of local amenities - in need of some updating.

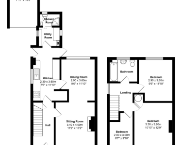
This spacious semi-detached family home is located on Roselands Drive in Paignton, offering an ideal family home in a sought-after area. As you enter the property, the entrance porch provides the perfect space for hanging coats and shoes. You are greeted with a a good sized entrance hallway with stairs to the first floor and access to the principle rooms on the ground floor. The living room boasts a central fireplace with gas fire and a large picture window which allows natural light to flood the room, as well as offering a pleasant open outlook over the front of the property. The dining room is adjacent to the living room and features an open archway connecting the two rooms, providing a seamless flow between the spaces. The kitchen is well-appointed with a range of wall and base level units, offering plenty of storage space. Space for appliances including cooker, fridge, freezer and dishwasher. It also benefits from a door leading to the hallway, dining room, utility room, and the side aspect of the property. The utility room provides additional space for laundry appliances and has a door leading to the rear garden. There is also a cloakroom at the rear of the utility room with a shower cubicle, toilet and sink, providing convenience for guests and residents alike. Moving up to the first floor, you will find three bedrooms - two doubles and a single - along with a family bathroom complete with a panelled bath, sink, toilet and window to the rear. Outside, the property features driveway parking leading to the garage, as well as a lawned front garden (which subject to the necessary consents and work could create additional parking). The rear garden is a good size, mainly laid to lawn with a small patio area, making it ideal for outdoor entertaining or simply enjoying being outside. The property is situated in the desirable Roselands Drive area of Paignton, which is known for its family-friendly atmosphere and close proximity to local amenities. With no onward chain, this property presents an excellent opportunity for buyers looking for a spacious family home in a popular residential location, which they can put their own mark on. Viewing is highly recommended to fully appreciate all that this property has to offer.

Rooms

Reception rooms
1
Bed
3
Bathrooms
2

DETAILS

UPRN :  200003243937
FEATURES:
  • Entrance porch leading into the entrance hallway
  • Living room with large picture window
  • Dining room with access to utility room/WC
  • Three bedrooms
  • Family bathroom
  • Gardens, driveway parking and garage
  • Popular residential location within easy reach of local amenities
  • In need of some updating
  • No onward chain

 Related properties

Nearby properties
3 bed semi-detached for rent in Paignton, Devon, TQ4
Rent £ 1,300/PCM
Harberton Close, Paignton, Devon, TQ4 7EA, England
2 bed bungalow for sale in Paignton, Devon, TQ4
Buy Guide Price £280,000
Lidford Tor Avenue, Paignton, Devon, TQ4 7ED, England
5 bed detached house for sale in Paignton, Devon, TQ4
Buy £ 550,000/
Mimosa Way, Paignton, Devon, TQ4 7FE, England