3 bed barn conversion for sale in Ogwell, Devon, TQ12 Available

£ 335,000/
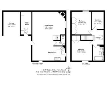
Croft Stable, Milton Farm, Ogwell, Devon, TQ12 6AT, England
  (0/5) / 328
  • IMG_3602
  • IMG_3502
  • IMG_3547
  • IMG_3556
  • IMG_3517
  • IMG_3577
  • IMG_3519
  • IMG_3563
  • IMG_3608
  • IMG_3591
  • IMG_3533
  • IMG_3599
  • IMG_3509
  • IMG_3525
  • Croft Stable, Milton
1 Receptions
3 Beds
1 Baths
£ 335,000/
Woods Homes Sales (Teignbridge)

Woods Homes Sales (Teignbridge)

Phone


View ratings and reviews for this agent:
No entries were found

Monthly Budget Calculator

Can you afford this property?

Description

A beautiful three-bedroom barn conversion with a number of character features, open plan living space, separate utility room and carport. Located in the picturesque village of old Ogwell.

This charming property is filled with character, yet offers a wonderful blend of contemporary living with traditional features.

Upon entering the property, you are greeted by a spacious open plan living area which is the heart of the home. The room boasts original wooden beams, wood flooring and a wood burning stove. This area is perfect for entertaining guests or cosy nights in relaxing with family.

The country style kitchen/dining area is well-equipped with a good range of wall and base level kitchen units providing ample storage, built in oven with electric hob and space for appliances. There is ample space for a dining suite and a door takes you through to a separate cloakroom with WC for added convenience.

The property features three good sized bedrooms, each with its own unique charm. The master bedroom is spacious and bright, with exposed beams and built in wardrobes. The second and third bedrooms are perfect for guests or children, offering comfort and privacy.

The bathroom is a particular feature with a large roll top bathtub with claw feet, wash hand basin and WC. There is a velux window providing natural light, along with stylish fittings. This luxurious space is the ideal retreat after a long day.

Outside, the property benefits from a carport and separate utility room, providing convenience and practicality. The carport offers covered parking for one vehicle, while the utility room is perfect for storing laundry and household essentials.

Situated in the charming village of Old Ogwell, this property offers a peaceful and idyllic setting. Surrounded by stunning countryside views and with easy access to local amenities, this is the perfect place to call home.

Offered with no onward chain, this barn conversion is ready for its new owners to move in and start enjoying all it has to offer. Don't miss the opportunity to make this character-filled property your own. Contact us today to arrange a viewing.

Rooms

Reception rooms
1
Bed
3
Bathrooms
1

DETAILS

UPRN :  10032962319
Tenure type :  Freehold
FEATURES:
  • Character filled barn conversion
  • Three good sized bedrooms
  • Wonderful Bathroom
  • Spacious open plan living area with wood burning stove
  • Country style Kitchen/dining area
  • Car port & separate utility room
  • Charming village location
  • Offered with no onward chain

Important Information

Important Information

 Related properties

Nearby properties
2 bed semi-detached for rent in Ogwell, Devon, TQ12
Rent £ 925/PCM
Rowan Close, Ogwell, Devon, TQ12 6YN, England
3 bed detached house for sale in Ogwell, Devon, TQ12
Buy £ 362,500/
Reynell Road, Ogwell, Ogwell, Devon, TQ12 6YA, England
2 bed semi-detached for rent in Ogwell, Devon, TQ12
Rent £ 900/PCM
Saddleback Close, Ogwell, Ogwell, Devon, TQ12 6GW, England