2 bed semi-detached for sale in Newton Abbot, Devon, TQ12 SSTC

£ 265,000/
Woodmere Way, Kingsteignton, Newton Abbot, Devon, TQ12 3SW, England
  (0/5) / 148
  • IMG_4572-2
  • IMG_4534
  • IMG_4513
  • IMG_4498
  • IMG_4476
  • IMG_4448
  • IMG_4441.JPG
  • IMG_4464
  • IMG_4564.JPG
  • IMG_4488
  • IMG_4522
  • IMG_4525
  • IMG_4553
  • IMG_4557.JPG
  • IMG_4560.JPG
  • EPC
  • 74 Woodmere Way, Kin
2 Receptions
2 Beds
2 Baths
£ 265,000/
Woods Homes Sales (Teignbridge)

Woods Homes Sales (Teignbridge)

Phone


View ratings and reviews for this agent:
No entries were found

Monthly Budget Calculator

Can you afford this property?

Description

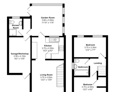
This spacious extended semi-detached house in Kingsteignton offers a fantastic opportunity for a first-time buyer or a small family. The property features a spacious lounge, a modern kitchen, a large rear extension/dining room, a convenient ground floor shower room, two double bedrooms, a family bathroom, garage/store room and driveway parking.

Upon entering the property there is an entrance porch with a built in cloaks cupboard a timber and glazed door taking you into the welcoming lounge, perfect for relaxing and entertaining guests. The lounge has an open staircase, a double glazed Georgian window to the front, a radiator and a coved ceiling. An archway takes you into the fitted kitchen, which boasts ample base units with drawers, matching wall cabinets, a wine rack and a tall cupboard. There are three pull out larder cupboards, a fitted breakfast bar, matching the working surfaces, with tiled splash backs, a radiator, a Georgian double glazed window looking into the extension/dining room and a timber and glazed door taking you into the extension. There is plumbing and space for dish washer, space for a tall fridge freezer and space for a free standing cooker. One of the standout features of this property is the large rear extension, which has been utilised as a dining room, providing plenty of space for family meals or social gatherings. This versatile space could also be used as a home office, playroom, or even a guest room offering flexibility to suit your needs. Double glazed French doors take you out to a decked terrace and the rear garden. A fire door takes you into an inner hallway where there is plumbing and space for a washing machine and space for a tumble dryer. Further doors take you into the ground floor shower room and the garage/workshop. The Shower room has a fully tiled shower cubicle with large shower head and a hand held shower attachment, a lo flush WC and a pedestal wash hand basin, there are fully tiled walls, a ceramic tiled floor, radiator and a double glazed window. The garage/workshop has power and light, a radiator, fitted shelving and storage in the roof space. A wall mounted combination boiler runs the central heating and hot water systems and a timber door takes you out top the driveway parking. The property comprises two double bedrooms, both with double glazed windows, radiators and laminated flooring offering comfortable accommodation for a small family or guests. One of the bedrooms has a built in wardrobe/cupboard with fitted shelving. The family bathroom is sleek and contemporary, with a jacuzzi whirl pool bath, perfect for unwinding after a long day, a vanity sink unit with cupboards under and a low flush WC. There is waterproof panelling to the walls, an obscure Georgian double glazed window, heated towel rail and ceramic tiled floor. Outside, the property benefits from a rear paved garden, providing a private outdoor space for relaxing or enjoying al fresco dining. At the bottom of the garden is a large work shop offering ample additional storage space and having power and light. The driveway parking to the front means you will never have to worry about finding a parking space. Overall, this extended semi-detached house offers a fantastic opportunity for buyers looking for a very spacious property in a convenient location. Don't miss out on the chance to make this property your own – book a viewing today!

Rooms

Reception rooms
2
Bed
2
Bathrooms
2

DETAILS

UPRN :  100100657071
Tenure type :  Freehold
FEATURES:
  • Extended Semi Detached House
  • Two Bedrooms
  • Lounge & Fitted Kitchen
  • Rear Extension/Dining Room
  • Ground Floor Shower Room
  • Family Bathroom
  • Workshop/Garage
  • Driveway Parking
  • Rear Garden with Large Workshop
  • Chain Free

 Related properties

Nearby properties
2 bed terraced for sale in Newton Abbot, Devon, TQ12
Buy £ 214,950/
Oak Close, Kingsteignton, Newton Abbot, Devon, TQ12 3SY, England
2 bed end of terrace for sale in Newton Abbot, Devon, TQ12
Buy £ 235,000/
Woodmere Way, Kingsteignton, Newton Abbot, Devon, TQ12 3SW, England
2 bed semi-detached for sale in Newton Abbot, Devon, TQ12
Buy £ 235,000/
Chestnut Drive, Kingsteignton, Newton Abbot, Devon, TQ12 3SZ, England