2 bed apartment for sale in Paignton, Devon, TQ3 SSTC

£ 200,000/
Headland Court, 6 Great Headland Road, Paignton, Devon, TQ3 2DY, England
  (0/5) / 181
  • View
  • Kitchen
  • Living Room
  • Bedroom
  • Bathroom
  • Entrance Hall
  • Loft Room
  • Living Room
  • Loft Room
  • Front of the Buildin
  • View Taken from Balc
  • EPC
  • EPC
  • Flat4HeadlandCourt6G
1 Receptions
2 Beds
1 Baths
£ 200,000/
Woods Homes – Torbay

Woods Homes – Torbay

Phone


View ratings and reviews for this agent:
No entries were found

Monthly Budget Calculator

Can you afford this property?

Description

A spacious two double bedroom apartment with panoramic sea views, balcony and allocated parking, situated in the popular area of Preston.

Headland Court is situated in the desirable location of Preston, which sits between Paignton and Torquay near to the historic Oldway Mansion. There are a fantastic selection of nearby beaches including Preston Sands, Hollacombe and Paignton sands with its large green and Iconic Pier. Within the area are local amenities including independent and mainstream retailers, GP surgeries, eateries, public houses and easy access to great public transport links including bus & train station at Paignton Town Centre and Torquay Train station. Preston is also located only half a mile from Paignton Town centre with an array of amenities and attractions.

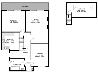
This spacious apartment offers a split level entrance hallway with doors to the principle rooms. The kitchen has a modern range of matching wall and base level units, roll top work surfaces with sink and drainer, electric hob, a built in oven with extractor hood over and space for a tall fridge freezer. The room is well planned and enjoys a pleasant outlook over the front.

There are two double bedrooms, one placed at the front of the property, whilst the main bedroom is located at the rear of the property and boasts patio doors onto the private balcony, which takes in superb views over the sea. The balcony offers a lovely space to sit out and enjoy the view.

The bathroom is a good size comprising of a panelled bath with shower above, pedestal wash hand basin and low level WC.

The living/ dining room again offers a sliding patio door leading onto the balcony and enjoys stunning far reaching view towards the sea. From the hallway steep stairs lead to the loft room, which would make a great office/ hobbies room, with two “Velux” windows enjoying sea views.

Externally there is one allocated parking space for the property on the driveway.

Additional Information
Tenure: Leasehold with share of the Freehold
Lease - 174 Years remaining
Service Charge - 2023/ £922.50 every 6 months.

Rooms

Reception rooms
1
Bed
2
Bathrooms
1

DETAILS

UPRN :  100040524475
Tenure type :  Share of Freehold
FEATURES:
  • Spacious Living/Dining Room
  • Two Double Bedrooms
  • Good Sized Modern Kitchen
  • Bathroom
  • Useful Loft Room
  • Private Balcony
  • Panoramic Sea Views
  • Allocated Parking
  • Opportunity for some Updating
  • Chain Free

Important Information

Important Information

 Related properties

Nearby properties
3 bed detached house for sale in Paignton, Devon, TQ3
Buy £ 375,000/
Cedar Road, Paignton, Devon, TQ3 2DD, England
4 bed semi-detached for sale in Paignton, Devon, TQ3
Buy Guide Price £400,000
Hilton Drive, Preston, Paignton, Devon, TQ3 1JH, England
3 bed cottage for sale in Paignton, Devon, TQ3
Buy £ 285,000/
Higher Hollacombe Cottages, Paignton, Devon, TQ3 2DS, England