Guide Price £330,000 2 bed cottage for sale in Abbotskerswell, Devon, TQ12 Available

  (0/5) 177
  • IMG_8196
  • IMG_8106
  • IMG_8138
  • IMG_8148
  • IMG_8127
  • IMG_8055
  • IMG_8086
  • IMG_8076
  • IMG_8095
  • IMG_8182
  • IMG_8118
  • IMG_8140
  • IMG_8101
  • IMG_8048
  • IMG_8064
  • IMG_8097
  • IMG_8149
  • IMG_8153
  • IMG_8166
  • IMG_8168
  • IMG_8186
  • IMG_8189
  • IMG_8199
  • dji_fly_20240723_242
  • dji_fly_20240723_241
  • EPC
  • 1 Well Cottages Abbo
2 Receptions
2 Beds
1 Baths
Guide Price £330,000 Well Cottages, Abbotskerswell, Newton Abbot, Devon, Well Cottages, Abbotskerswell, Abbotskerswell, Devon, TQ12 5NR, England
Woods Homes Totness

Woods Homes Totness

Phone


View ratings and reviews for this agent:
No entries were found

Monthly Budget Calculator

Can you afford this property?

Description

A beautifully presented 19th century character cottage situated in the heart of the picturesque village of Abbotskerswell with well fitted kitchen, dining room, dual aspect lounge with open fire, two bedrooms, family bathroom and delightful enclosed gardens. EPC rating: E

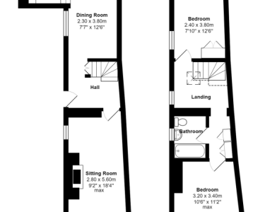
A stable door opens to the entrance hall where there is a door to the lounge, opening to the dining room and stairs rising to the first floor landing with cupboard under. The lounge is a charming dual aspect room with double glazed window to the front and a single glazed window to the side of the property, exposed beams, fireplace with stone hearth, wooden mantle and an open fire. The dining area has tiled flooring, double glazed window with a view to the patio and garden beyond, and two steps leading to the kitchen. The kitchen is very well fitted with a range of wall and base level units and drawers with granite work surfaces and tiled splash areas. There is an inset stainless steel sink with mixer tap, 4 ring gas hob with extractor over, electric oven under and chimney style extractor over. Integrated appliances include dishwasher, fridge freezer and microwave. On the first floor and accessed from the vaulted landing with wooden floors, exposed beams and Velux window, are two double bedrooms, the family bathroom and two storage cupboards. The master bedroom has a vaulted ceiling with exposed beams, feature fireplace with mantle and mezzanine area providing additional storage. A double glazed window over looks the front of the property. Bedroom two is also a vaulted double room with exposed beams, fitted wardrobe and has a double glazed window providing views over the patio and garden. The family bathroom is part tiled and fitted with suite comprising panelled bath with electric shower over and glazed shower screen, low level WC and pedestal wash hand basin. There is an obscured window and extractor fan. Outside of the property the gardens are predominately to the side, mainly laid to lawn and enclosed by timber fencing with mature hedging, with patio area, timber shed and beds and borders stocked with a variety of plants and shrubs. There is an additional seating area at the front of the property. 1 Well Cottages is freehold and connected to all mains services with gas fired central heating. Council Tax band: D - Teignbridge District Council

Rooms

Reception rooms
2
Bed
2
Bathrooms
1

DETAILS

UPRN :  100040336041
Tenure type :  Freehold
FEATURES:
  • A beautifully presented character home situated in the sought after village of Abbotskerswell
  • Entrance hall
  • Dual aspect lounge with open fireplace and exposed beams
  • Dining area
  • Well fitted kitchen
  • Two double bedrooms with vaulted ceilings and exposed beams
  • Family bathroom
  • Enclosed gardens

 Related properties

Nearby properties
2 bed cottage for sale in Abbotskerswell, Devon, TQ12
Buy £ 325,000/
Cross View, Abbotskerswell, Devon, TQ12 5PL, England
2 bed cottage for sale in Abbotskerswell, Devon, TQ12
Buy Offers Over £300,000
Cross View, Abbotskerswell, Devon, TQ12 5PL, England
3 bed semi-detached for sale in Abbotskerswell, Devon, TQ12
Buy Guide Price £285,000
St. Marys Close, Abbotskerswell, Abbotskerswell, Devon, TQ12 5QF, England