4 bed maisonette for rent in Paignton, Devon, TQ3 Available

£ 1,150/1 Month Rental
Palace Avenue, Paignton, Devon, TQ3 3EF, England
  (0/5) / 49
  • PXL_20250630_1356214
  • PXL_20250630_1338100
  • PXL_20250630_1338016
  • PXL_20250630_1352134
  • PXL_20250630_1338360
  • PXL_20250630_1339023
  • PXL_20250630_1340059
  • PXL_20250630_1340201
  • PXL_20250630_1340345
  • PXL_20250630_1341273
  • PXL_20250630_1340497
  • PXL_20250630_1339312
  • PXL_20250630_1339490
  • PXL_20250630_1354245
  • PXL_20250630_1354316
  • EPC
  • 11a Palace Avenue, P
1 Receptions
4 Beds
2 Baths
£ 1,150/1 Month Rental
Woods Homes Lettings – Teignbridge

Woods Homes Lettings – Teignbridge

Phone


View ratings and reviews for this agent:
No entries were found

Monthly Budget Calculator

Can you afford this property?

Description

Available 18th July 2025. A well presented and newly refurbished four bedroom, two storey maisonette, within walking distance to local amenities, transport links and Paignton sea-front. EPC D. Council Tax C. Deposit required £1,442.

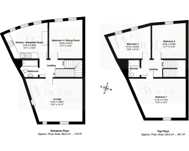
A very well presented two storey maisonette with four double bedrooms located in the centre of Paignton within walking distance to local amenities, transport links and Paignton sea-front. The flat entrance with stairs rising to the first floor to the spacious newly installed modern kitchen with a range of attractive slate blue shaker style wall and base units, butchers block effect work surfaces, integrated electric oven, electric hob with extractor hood above, integrated dishwasher, space and plumbing for washing machine, space for tall fridge/freezer, space for dining table and chairs, the good size light and airy lounge boasts a large window with blind, new carpet and feature ornamental fire surround, bedroom four has new carpet and two large windows with blinds, bathroom has a bath with shower over with a waterfall head option and glass shower screen, the second floor has the other three double bedrooms all with new carpets and windows with blinds, there is a newly installed shower room with large shower cubicle. There is a new wet electric boiler system. Double glazing. EPC D. Council Tax Band C. Deposit required £1,442. Available 18th July 2025.

Rooms

Reception rooms
1
Bed
4
Bathrooms
2

DETAILS

Tenure type :  Leasehold
Furnished :  Unfurnished
FEATURES:
  • Paignton location
  • Close to transport links and Sea-front
  • Two storey maisonette
  • Newly refurbished
  • New carpets and flooring
  • Four double bedrooms
  • New modern kitchen
  • New shower room and bathroom
  • Available 18th July 2025

ADD COMMENT OR ASK A QUESTION

Your rating:

Submit