3 bed terraced for sale in Kingsbridge, Devon, TQ7 Available

Guide Price £290,000 Collaton Road, Kingsbridge, Devon, TQ7 3SJ, England
  (0/5) / 111
  • Photo 14
  • Photo 1
  • Photo 2
  • Photo 7
  • Photo 5
  • Photo 10
  • Photo 9
  • Photo 12
  • Photo 11
  • Photo 13
  • Photo 3
  • Photo 8
  • Photo 4
  • EPC
  • Floorplan_Floorplan1
1 Receptions
3 Beds
1 Baths
Guide Price £290,000
Woods Homes Totness

Woods Homes Totness

Phone


View ratings and reviews for this agent:
No entries were found

Monthly Budget Calculator

Can you afford this property?

Description

A well presented mid terraced family home situated in this sought after village with accommodation a comprising lounge opening to conservatory, kitchen/dining room, three bedrooms and family bathroom. There are lawned gardens to the front and the rear of the property. The Devon Rule applies.

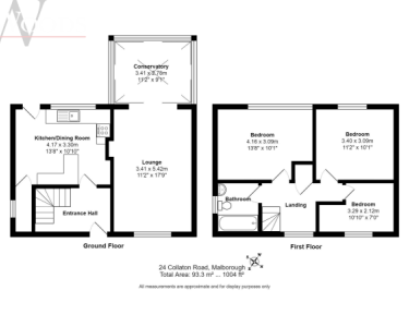
A uPVC double glazed door at the front of the property opens into the entrance hall where there are doors to the lounge and kitchen/dining room and stairs rising to the first floor with storage under. The lounge is a spacious room with feature fireplace, TV point, two radiators and a uPVC double glazed window to the front of the property. An opening from the lounge leads into the double glazed conservatory where there is a radiator and sliding doors opening to the enclosed rear garden. The kitchen/dining room is fitted with wall and base level units with 4-ring gas hob and electric double oven under, inset stainless steel sink and drainer and tiled splash areas. There is space for table and chairs, radiator and a uPVC double glazed window and door to the rear garden. A walk in cupboard houses the boiler.

On the first floor and accessed from the landing are doors to the three bedrooms and the family bathroom. Bedrooms one and two are both double rooms fitted with radiators and uPVC double glazed windows with views over the rear garden towards fields in the distance. Bedroom three is a single bedroom with radiator and uPVC double glazed window to the front of the property. The family bathroom is part tiled and fitted with suite comprising panelled bath with mixer tap and shower attachment, low level WC and pedestal wash hand basin. There is a radiator and obscured uPVC double glazed window.

Outside of the property and to the front the garden has lawned areas with pathway leading to the front door. To the rear the garden is enclosed by timber fencing and is mainly laid to lawn and also has a decked seating area.
24 Collaton Road is freehold and connected to all mains services with gas fired central heating. Council Tax band: C - South Hams District Council.
Agents Note: The Devon Rule applies to this property - see agents for more information.

Malborough is a sought after village within a bus ride to the market town of Kingsbridge and Salcombe. The village has amenities including co-op/filling station, farm shop, two public houses, primary school and church.

Rooms

Reception rooms
1
Bed
3
Bathrooms
1

DETAILS

UPRN :  100040284287
Tenure type :  Freehold
FEATURES:
  • A well presented terraced home situated in the sought after village of Malborough
  • Recently decorated throughout and with newly fitted carpets
  • Spacious lounge
  • Kitchen/dining room
  • Three bedrooms
  • Family bathroom
  • Front and rear gardens
  • Offered for sale with no onward chain
  • The 'Devon Rule' applies

 Related properties

Nearby properties
2 bed cottage for sale in Kingsbridge, Devon, TQ7
Buy Guide Price £350,000
Weymouth Cottages, West Charleton, Kingsbridge, Devon, TQ7 2AJ, England
2 bed cottage for rent in Kingsbridge, Devon, TQ7
Rent £ 1,050/1 Month Rental
Weymouth Cottages, West Charleton, Kingsbridge, Devon, TQ7 2AJ, England

ADD COMMENT OR ASK A QUESTION

Your rating:

Submit