3 bed semi-detached for sale in Totnes, Devon, TQ9 SSTC

Guide Price £595,000 Fernleigh Cottage, Pomeroy Villas, Bridgetown, Totnes, Devon, TQ9 5BE, England
  (0/5) / 147
  • IMG_8772.JPG
  • IMG_8769.JPEG
  • IMG_8785.JPEG
  • IMG_8815.JPG
  • IMG_8796.JPEG
  • IMG_8802.JPEG
  • IMG_8808.JPEG
  • IMG_8779.JPEG
  • IMG_8805.JPEG
  • IMG_8774.JPG
  • IMG_8773.JPG
  • IMG_8792.JPEG
  • IMG_8788.JPEG
  • IMG_8812.JPEG
  • IMG_8799.JPEG
  • IMG_8814.JPEG
  • IMG_8775.JPEG
  • IMG_8776.JPEG
  • IMG_8784.JPG
  • IMG_8778.JPEG
  • IMG_8793.JPG
  • IMG_8810.JPG
  • IMG_8818.JPG
  • IMG_8819.JPG
  • EPC
  • Fernleigh Cottage, P
  • Stables & Hayloft, P
3 Receptions
3 Beds
2 Baths
Guide Price £595,000
Woods Homes Totness

Woods Homes Totness

Phone


View ratings and reviews for this agent:
No entries were found

Monthly Budget Calculator

Can you afford this property?

Description

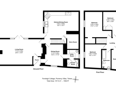
Located within walking distance of the town and its many amenities is this semi-detached Grade II Listed Georgian home with benefits including spacious living room, well fitted kitchen, three bedrooms, two bathrooms and a patio garden with lawn. A short walk from the property are two garages/stables with parking in front and hayloft storage above. Offered for sale with no onward chain.

This charming Georgian semi-detached cottage in Totnes is a delightful property with plenty of character and traditional features. Boasting three double bedrooms and two bathrooms, this spacious home offers the perfect blend of modern convenience and period charm. Upon entering the property, you are greeted by a hallway leading into the bright and airy sitting room, flooded with natural light and featuring double glazed French windows opening to the veranda. The kitchen is well-appointed with a good range of units, ample storage space, and a large kitchen table area perfect for family meals. A standout feature of the kitchen is the flueless gas range cooker, ideal for cooking up delicious meals. A storage room sits behind the kitchen, providing additional space for household items. The dining room is connected to a utility room and a downstairs shower room, offering practicality and convenience for everyday living. Upstairs, the square landing leads to three generously sized double bedrooms, each offering ample space for relaxation and storage. The family bathroom features a paneled bath with a shower attachment, a low-level WC, and a wash hand basin, providing a comfortable and stylish space for daily routines. A further room on the first floor is perfect as a study or dedicated playroom, offering flexibility and versatility for family living. Outside, the courtyard garden is a tranquil oasis with mature shrubs and a lawn area, perfect for enjoying the outdoors in peace and privacy. Parking for three cars is provided in a separate courtyard, featuring two garages with a storage hayloft above, ensuring ample space for vehicles and storage requirements. Fernleigh Cottage is Grade II listed, freehold and is connected to all mains services with gas fired central heating. Council Tax band: B - South Hams District Council. Overall, this Georgian semi-detached cottage in Totnes offers a wonderful blend of period features and modern convenience, making it a truly charming and desirable property for those seeking a characterful home in a picturesque location. Don't miss the opportunity to make this delightful property your own.

Rooms

Reception rooms
3
Bed
3
Bathrooms
2

DETAILS

Tenure type :  Freehold
FEATURES:
  • A semi detached Grade II listed Georgian cottage situated within walking distance of the town centre and its many amenities
  • Sitting room which is filled with natural light
  • Well fitted kitchen with flueless gas range cooker and space for large kitchen table and storage room
  • Dining room, utility room and ground floor shower room
  • Three double bedrooms and a study/playroom
  • Family bathroom
  • Courtyard garden with mature shrubs and area of lawn.
  • Parking and two stables/garages with a storage hayloft above are located a short walk from the property

ADD COMMENT OR ASK A QUESTION

Your rating:

Submit