3 bed cottage for sale in Chudleigh, Devon, TQ13 SSTC

£ 375,000/
Winstow Cottages, Chudleigh, Devon, TQ13 0AH, England
  (0/5) / 153
  • Winstow.JPG
  • IMG_8584
  • IMG_8495.JPEG
  • IMG_8524.JPEG
  • IMG_8527.JPEG
  • IMG_8562.JPEG
  • IMG_8550.JPEG
  • IMG_8593.JPEG
  • IMG_8536.JPEG
  • IMG_8602.JPEG
  • IMG_8522.JPEG
  • IMG_8510.JPEG
  • IMG_8509.JPEG
  • IMG_8566.JPEG
  • IMG_8573.JPEG
  • IMG_8541.JPEG
  • IMG_8530.JPEG
  • IMG_8608.JPEG
  • IMG_8588.JPEG
  • IMG_8598.JPEG
  • IMG_8606.JPEG
  • IMG_8613.JPEG
  • 1 Winstow Cottages,
1 Receptions
3 Beds
1 Baths
£ 375,000/
Woods Homes Sales (Teignbridge)

Woods Homes Sales (Teignbridge)

Phone


View ratings and reviews for this agent:
No entries were found

Monthly Budget Calculator

Can you afford this property?

Description

An attractive and well-presented 3 bedroom semi-detached period cottage, set in a stunning rural position surrounded by secluded woodland within the Ugbrooke Estate. Enjoying rural views, pretty gardens and ample parking.

Winstow Cottages is a truly unique property, offering a rare opportunity to own a lovely cottage nestled in its own private woodland setting on the prestigious Ugbrooke Estate. This secluded location provides peace and tranquillity, with stunning rural views. The property is a credit to the current owners who have updated and redecorated throughout to provide modern living accommodation whilst still retaining the cottages character and charm.

Approaching the property via a private gravel track, you immediately feel a sense of escape from the hustle and bustle of everyday life. The cottage itself boasts a traditional charm with period features and a warm, welcoming feel throughout.

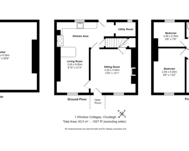
The ground floor accommodation comprises an entrance porch made from local larch wood with the original wide front door leading to a cosy living room with a fireplace featuring a cast iron wood burning stove and views over the front garden.

The owners have opened the kitchen into the dining room to create a spacious open plan kitchen dining room with ample space for cooking, dining and entertaining. The dining room has a feature fireplace, wood flooring and a window to front aspect with views over the garden. The kitchen has a good range of shaker style wall and base level kitchen unit, providing plenty of storage, there is freestanding range cooker in alcove, Belfast sink, wood work surfaces, and an integrated dishwasher. A small utility room provides additional storage and convenience with space for a washing machine with tumble dryer on top and space for a tall fridge freezer.

The staircase leads to the first floor, where you will find three bedrooms and a family bathroom. The bedrooms offer ample space and natural light, with the two double rooms enjoying far-reaching views of the surrounding countryside.

The property benefits from a good size cellar providing additional storage and housing the oil fired boiler.

Outside, the property is surrounded by beautiful woodland, offering a sense of seclusion and privacy. A gravel driveway provides ample parking space, and there is a lovely, level front lawn area where you can relax and enjoy the peaceful surroundings, along with a chicken coop and shed. At the rear of the property, there is a small courtyard and a sloping bank of woodland leading up to the lane behind, accessed via stone steps.

In terms of amenities, the property benefits from mains electricity, water, and oil-fired central heating. The private drainage system is located on neighbouring land, which also serves the attached cottage.

Please note that the Ugbrooke Estate will be imposing covenants on the property, ensuring that it is used solely as a single private dwelling house. Additionally, there will be a fixed fee per year towards the maintenance of the entrance track.

The location of Winstow Cottages offers a perfect blend of rural seclusion and accessibility. Situated just 2.5 miles from Chudleigh and 4 miles from Kingsteignton, you will have easy access to a range of facilities and services. The nearby A38 and A380 provide excellent transport links to Exeter, Plymouth, Torbay, and the motorway network, making this property an ideal retreat for those seeking a peaceful countryside lifestyle without compromising on convenience.

Overall, Winstow Cottages is a rare find in today's property market, offering a unique opportunity to own a charming period cottage in a secluded woodland setting. With its charming features, ample living space, and stunning rural views, this property is sure to enchant those seeking a special retreat in the heart of the Devon countryside. Book a viewing today to experience the magic of Winstow Cottages for yourself.

Directions - As you enter Chudleigh from the A38/Kingsteignton road turn right signposted Virtual Jet Centre. Continue on the road for a mile and the entrance drive to the property is on the left with the cottage at the top of this drive.

Rooms

Reception rooms
1
Bed
3
Bathrooms
1

DETAILS

UPRN :  10032960798
FEATURES:
  • Charming period semi-detached cottage
  • Private Woodland setting with rural views
  • Three bedrooms
  • Cottage style kitchen dining room
  • Large cellar
  • Cosy Lounge with wood burning stove
  • Family Bathroom
  • Ample parking
  • Secluded rural location but within easy reach of Chudleigh and the A38

Important Information

Important Information

 Related properties

Nearby properties
2 bed semi-detached for sale in Chudleigh, Devon, TQ13
Buy £ 415,000/
Winstow Cottages, Chudleigh, Devon, TQ13 0AH, England
4 bed semi-detached for rent in Chudleigh, Devon, TQ13
Rent £ 1,395/1 Month Rental
Weavers Road, Chudleigh, Devon, TQ13 0FU, England
2 bed semi-detached for sale in Chudleigh, Devon, TQ13
Buy Offers in Excess of £255,000
Spinners Square, Chudleigh, Devon, TQ13 0FQ, England

ADD COMMENT OR ASK A QUESTION

Your rating:

Submit