2 bed terraced for sale in Totnes, Devon, TQ9 SSTC

£ 324,950/
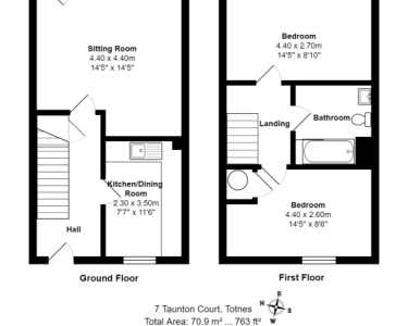
Taunton Court, Totnes, Devon, TQ9 5WF, England
  (0/5) / 108
  • IMG_2453
  • IMG_2431
  • IMG_2404
  • IMG_2438
  • IMG_2425
  • IMG_2370
  • IMG_2379
  • IMG_2386
  • IMG_2437
  • IMG_2393
  • IMG_2395
  • EPC
  • EPC
  • 7 Taunton Court, Tot
1 Receptions
2 Beds
1 Baths
£ 324,950/
Woods Homes Totness

Woods Homes Totness

Phone


View ratings and reviews for this agent:
No entries were found

Monthly Budget Calculator

Can you afford this property?

Description

A mid terraced home situated within a level walk from the town centre and amenities with two double bedrooms, enclosed patio garden and off road parking. EPC rating: D

A door at the front of the property opens into the entrance hall where there are doors to the lounge, kitchen and under stair storage cupboard and stairs rise to the first floor. The kitchen has ceramic tiled flooring and is fitted with a range of wall and base level units and drawers and shelves with tiled splash areas, inset oven and electric hob with stainless steel chimney style extractor over. There is an integrated fridge and freezer, space and plumbing for washing machine, single draining stainless steel sink and drainer and space for dining table and chairs. A double glazed sash window over looks the front of the property. The lounge has a feature fireplace with electric fire, wall light points, a double glazed sash window and multi pane glazed door opening to the rear patio garden.

On the first floor are two double bedrooms with double glazed sash windows and wall mounted electric panel heaters. The bathroom is part tiled and fitted with suite comprising panelled bath with electric shower over and glazed shower screen, low level WC and pedestal wash hand basin.

Outside of the property and to the front there is a small area of garden, gravelled for ease of maintenance, with borders stocked with Lavender. To the rear of the property the patio garden is enclosed by walls and timber fencing and a wooden gate provides access to the rear where there is parking for one vehicle.

7 Taunton Court is freehold and connected to mains water, drainage and electricity with electric heating.

Council tax band : C - South Hams District Council.

For more information, or to make an appointment to view, please contact the office on 01803 866336

Rooms

Reception rooms
1
Bed
2
Bathrooms
1

DETAILS

UPRN :  10004743181
FEATURES:
  • A well presented mid terraced home situated within a level walk of the town centre and amenities
  • Entrance hall
  • Well fitted kitchen
  • Two double bedrooms
  • Bathroom
  • Enclosed rear patio garden
  • Off road parking

 Related properties

Nearby properties
3 bed terraced for rent in Totnes, Devon, TQ9
Rent £ 1,100/1 Month Rental
New Walk, Totnes, Devon, TQ9 5WE, England
2 bed town house for sale in Totnes, Devon, TQ9
Buy £ 320,000/
New Walk, Totnes, Devon, TQ9 5WE, England
2 bed for sale in Totnes, Devon, TQ9
Buy £ 335,000/
Reeves Close, Totnes, Devon, TQ9 5WG, England

ADD COMMENT OR ASK A QUESTION

Your rating:

Submit