2 bed bungalow for sale in Kingsteignton, Devon, TQ12 SSTC

£ 340,000/
Blindwell Avenue, Kingsteignton, Devon, TQ12 3BY, England
  (0/5) / 179
  • IMG_6684
  • IMG_6648
  • IMG_6657
  • IMG_6660
  • IMG_6664
  • IMG_6642
  • IMG_6645.JPG
  • IMG_6668
  • IMG_6670
  • IMG_6678
  • IMG_6652
  • IMG_6640
  • IMG_6680
  • EPC
  • EPC
  • TQ123BY-High
1 Receptions
2 Beds
1 Baths
£ 340,000/
Woods Homes Sales (Teignbridge)

Woods Homes Sales (Teignbridge)

Phone


View ratings and reviews for this agent:
No entries were found

Monthly Budget Calculator

Can you afford this property?

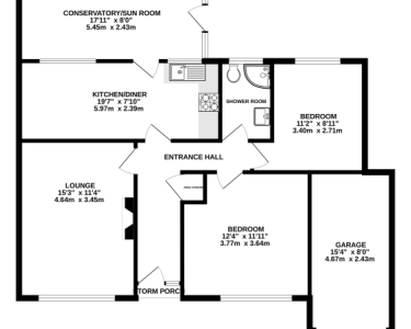
Description

A nicely appointed and spacious semi-detached bungalow with a garage, driveway parking and a large level garden. The bungalow is offered for sale with no onward chain and is located in a sought after area of Kingsteignton, just off Tarrs Avenue.

This spacious semi-detached bungalow in Kingsteignton is a fantastic opportunity for those looking for a comfortable and spacious home in a desirable location. The property boasts two double bedrooms, a lounge, a refitted kitchen/diner, a rear extension/conservatory, and a shower room. The bungalow is equipped with double glazing and gas central heating, ensuring a warm and efficient living space all year round.

Upon entering the property, you are greeted by a front garden laid to lawn with a concrete driveway leading to the garage and extending to the front pathway taking you to the UPVC front door which opens into the spacious hallway.

The hallway has access to the loft space, a radiator, a built in airing cupboard housing the gas fired boiler, and doors to all the principle rooms within the property.

The lounge is a very generous size with a large picture window to the front aspect having both clear and obscure glazing, offering plenty of natural light, a radiator and a feature fireplace with over mantle and hearth also incorporating an electric pebble effect Dimplex fire.

The kitchen/diner has been refitted and is well-equipped with a range of base and wall units, wine/bottle racks, a drawer stack, fitted worktop surfaces, with Acrylic surrounds, and a stainless steel sink unit with a window above. Built in appliances include a four ring ceramic hob with extractor hood over and an electric fan assisted oven under.

The extension/conservatory provides a peaceful retreat with lovely views of the garden. There are timber framed windows, two timber framed doors, part panelling to the walls and plumbing for an automatic washing machine, along with space and plumbing for a further appliance.

Both bedrooms are good size doubles with double glazed windows and radiators. The main bedroom enjoys having large wardrobes.

The shower room features a fully tiled shower cubicle with a mains shower unit, a pedestal wash hand basin and a low flush WC. There is a double glazed obscure window, part tiled walls, a wall mounted medicine cabinet, radiator and an extractor fan.

The rear garden is a true highlight of the property, with a large level lawn interspersed with paved pathways, a paved patio area and a concrete pathway taking you around to the side of the bungalow and the front. There is a timber built garden shed and a greenhouse.

The single garage is a practical addition with power and light, providing convenient storage space or parking.

In summary, this semi-detached bungalow offers a comfortable and versatile living space with the added bonus of a delightful garden, garage, and driveway parking. With no onward chain, this property presents a fantastic opportunity for buyers looking to settle in a peaceful and desirable area.

Rooms

Reception rooms
1
Bed
2
Bathrooms
1

DETAILS

UPRN :  43014954
FEATURES:
  • Semi-Detached Bungalow
  • 2 Double Bedrooms
  • Lounge
  • Refitted Kitchen/Diner
  • Rear Sun Room/Conservatory
  • Shower Room
  • Double Glazing & Gas Central Heating
  • Good Size Garden
  • Garage & Driveway Parking
  • No Onward Chain

Important Information

Important Information

 Related properties

Nearby properties
3 bed terraced for sale in Kingsteignton, Devon, TQ12
Buy £ 260,000/
Primrose Close, Kingsteignton, Devon, TQ12 3BU, England
3 bed semi-detached bungalow for rent in Kingsteignton, Devon, TQ12
Rent £ 1,295/1 Month Rental
Blindwell Avenue, Kingsteignton, Devon, TQ12 3DD, England
4 bed bungalow for sale in Kingsteignton, Devon, TQ12
Buy £ 425,000/
Nursery Road, Kingsteignton, Devon, TQ12 3BS, England

ADD COMMENT OR ASK A QUESTION

Your rating:

Submit